Lokal w Piasecznie-sklep,biuro,beauty

Lokal handlowy/usługowy na wynajem
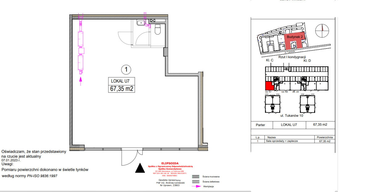
3 900,00 PLN , Pow. 67,35 m2
Drukuj ofertę
Drukuj ofertę
Typ nieruchomości:
Komercyjny
Powierzchnia:
67,35 m2
Typ transakcji:
wynajem
Lokalizacja:
Piaseczno , Tukanów
Rok budowy:
2023
Piętro:
0 na 3
Numer oferty:
209924
Cena za m2:
57,91 PLN
NAJEM | 67,35 m2 | LOKAL USŁUGOWY | PIASECZNO | 3900zł

Przedmiotem najmu jest lokal usługowy o powierzchni 67,35 m2 położony na parterze budynku, w Piasecznie przy ulicy Tukanów.

Lokal znajduje się w nowej inwestycji, w środkowej części, w otoczeniu innych lokali użytkowych. Idealny do prowadzenia działalności gospodarczej, biura lub jako przestrzeń komercyjna.

Opis lokalu:


  • Powierzchnia: 67,35 m²

  • Open Space - możliwość aranżacji według własnych potrzeb.

  • Duże witryny zapewniające doskonałą ekspozycję.

  • Możliwość umieszczenia reklamy na elewacji budynku 

  • Wysokość pomieszczeń: 4,25 m, co daje poczucie przestronności.

  • Dostęp do wszystkich mediów: prąd, woda, wyprowadzenie na montaż klimatyzacji, światłowód

  • Teren wokół budynku jest monitorowany

  • Miejsca parkingowe -ogólnodostępne przy budynku

  • Lokal znajduje się na parterze budynku mieszkalnego (mieszkania na wyższych kondygnacjach)


Lokalizacja:


  • Bliskość do przystanków komunikacji miejskiej oraz łatwy dojazd do Warszawy- ok. 25 minut samochodem

  • W sąsiedztwie infrastruktura handlowa oraz usługowa.

  • Bliska odległość od osiedli mieszkaniowych w Piasecznie i Starej Iwicznej


Cena najmu:


  • Cena: 3900 PLN + Vat.

  • Dodatkowo czynsz administracyjny (350 PLN) oraz opłaty licznikowe.

  • Kaucja: 8000 PLN.



Zapraszam na prezentację
Magdalena Zakrzewska
606 621 433
Agnieszka Dzierzgowska
606 611 113

* Treść niniejszego ogłoszenia nie stanowi oferty handlowej w rozumieniu art. 66 Kodeksu Cywilnego.

Nieprawidłowy adres E-mail