Opis nieruchomości
1 549 000 zł I Sprzedaż I Dom bliźniak 153,50 m2 I Sękocin Stary I gm. Raszyn
Bez prowizji od Kupującego !!!
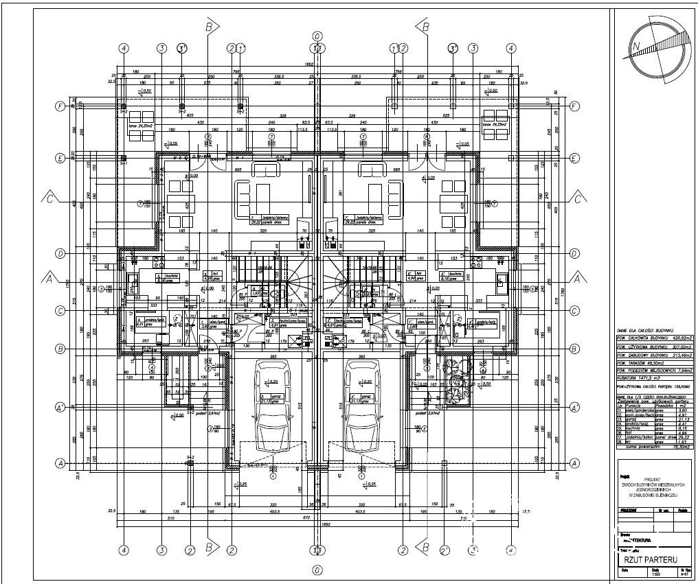
Przedmiotem sprzedaży jest dom jednorodzinny w zabudowie bliźniaczej, w stanie deweloperskim, o pow. użytkowej 153,50 m2 na działce o powierzchni 517 m2.
Pomieszczenia:
- parter: wiatrołap/garderoba, pom. gospodarcze, garaż 21,13 m2, pralnia/spiżarnia, hol, kuchnia, jadalnia/salon, wc (łącznie 78,30 m2)
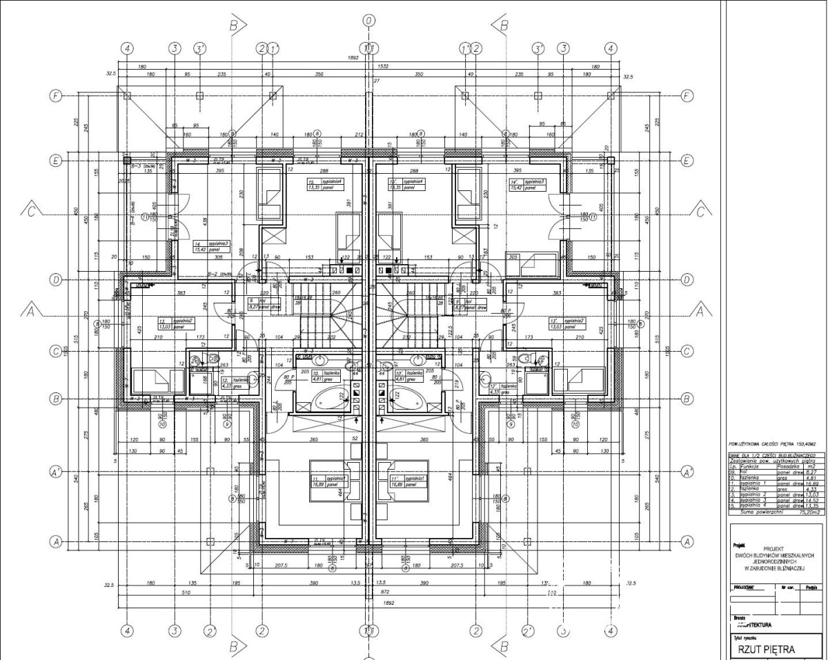
- piętro: 4 sypialnie w tym 1 master z łazienką, hol, wspólna łazienka (łącznie 75,20 m2)
1) Konstrukcja
● Fundamenty- ławy fundamentowe żelbetowe, ściany fundamentów z bloczków betonowych, izolacja przeciwwilgociowa i termiczna.
● Podłoga na gruncie - beton podkładowo- wyrównawczy - chudziak, folia, 20 cm styropian posadzkowy EPS 100, folia refleksyjna do ogrzewania podłogowego, ogrzewanie podłogowe, wylewka betonowa 6cm zbrojona siatką 4 mm.
● Ściany zewnętrzne- pustaki ceramiczne Porotherm Owczary - 25cm.
● Ściany działowe - pustak ceramiczny Porotherm Owczary - 11,5cm .
● Strop nad parterem- żelbetowy 16 cm, folia, 5 cm styropian posadzkowy EPS 100, folia refleksyjna do ogrzewania podłogowego, ogrzewanie podłogowe, wylewka betonowa 6cm zbrojona siatką 4 mm.
● Schody na piętro - zbrojone , żelbetowe.
● Strop nad piętrem - konstrukcja drewniana - płyta GK, sklejka brzozowa 15mm, folia Delta 4 cm, sklejka brzozowa 18 mm.
2) Dach
● Więźba drewniana.
● Pokrycie blacha młotkowana, na rąbek.
3) Drzwi i okna
● Drzwi wejściowe metalowe w kolorze antracyt
● Okna firmy PETECKI w kolorze antracyt zewnątrz / białe wewnątrz - PCV, pakiet trzyszybowy UW 0,50, ciepły montaż.
4) Elewacja
● Ocieplenie styropianem Knauf Therm gr. 20cm, grafitowy, Expert Fasada EPS =0,32
● Tynk cienkowarstwowy silikatowo - silikonowy - WeberPas Extraclean TD 331 LA 41 (biały) i LA 54 (antracyt).
● Parapety zewnętrzne z blachy - antracyt.
5) Wykończenie domów
● Posadzki parteru- folia, 20 cm styropian posadzkowy EPS 100, folia refleksyjna do ogrzewania podłogowego, ogrzewanie podłogowe, wylewka betonowa 6cm zbrojona siatką 4 mm.
● Posadzki na piętrze folia, 5 cm styropian posadzkowy EPS 100, folia refleksyjna do ogrzewania podłogowego, ogrzewanie podłogowe, wylewka betonowa 6cm zbrojona siatką 4 mm.
● Tynki maszynowe gipsowe, hybrydowe - Dolina Nidy THM, w pomieszczeniach mokrych (łazienki)
● Tynki maszynowe gipsowe lekkie - Dolina Nidy Alfa, białe, w pozostałych pomieszczeniach.
● Izolacja termiczna stropu nad piętrem - płyta GK, skleja brzozowa 15mm, folia Delta 4 cm, sklejka brzozowa 18 mm.
6) Instalacje wewnętrzne
● Kompletna instalacja wodno-kanalizacyjna, bez białego montażu +
przygotowane przyłącze na dodatkowy podlicznik do podlewania ogrodowego.
● Instalacja centralnego ogrzewania - ogrzewanie podłogowe na parterze oraz piętrze.
● Instalacja elektryczna.
● instalacja alarmowa, wewnętrzna (okablowanie).
● rozprowadzony kabel internetowy.
● przygotowane podłączenie (380V) pod ładowarkę samochodu elektrycznego.
● przygotowane przepusty (dach-garaż) do poprowadzenia instalacji fotowoltaicznej.
● przygotowane przepusty do wideofonu, sterowania bramą i światłowodu internetowego.
Media:
● przyłącze prądu,
● wodociąg,
● kanalizacja,
● przyłącze gazu z sieci miejskiej - ogrzewanie podłogowe w całym domu,
Prace wykończeniowe na terenie działki oraz wokół domu:
- Miejsce postojowe i podjazd wykonany z kostki betonowej.
- Teren ogrodu wyrównany, przygotowany pod trawnik.
- Ogrodzenie wewnętrzne - panelowe 3D
Dom oddany do użytkowania w 2023r.
Lokalizacja:
- szybki dojazd do Warszawy DK nr 7 lub Al. Krakowską, do centrum Warszawy 19km,
- szkoła podstawowa w Sękocinie - 2 km (4 minuty samochodem)
- centrum handlowe Janki - 4km,
- sklep spożywczy 200 m,
- w okolicy domy jednorodzinne,
- Las Sękociński (Leśna ścieżka edukacyjna) - 500 m
Świadectwo charakterystyki energetycznej.
Zapraszamy na prezentację,
Magdalena Mazurkiewicz
662 087 755
* Treść niniejszego ogłoszenia nie stanowi oferty handlowej w rozumieniu art. 66 Kodeksu Cywilnego