300 m2 domu na działce 1238m2 Bielawa/Konstancin

Dom (Wolnostojący) na sprzedaż
2 890 000,00 PLN , Pow. 300 m2
Drukuj ofertę
Drukuj ofertę
Typ nieruchomości:
Dom
Powierzchnia:
300 m2
Typ transakcji:
sprzedaż
Liczba pokoi:
5
Lokalizacja:
Bielawa , Ścienna
Rok budowy:
2024
Liczba pięter:
2
Numer oferty:
794447
Powierzchnia działki:
1 239 m2
Cena za m2:
9 633,00 PLN
Dom | 300m2 | działka 1239m2 | Bielawa - Konstancin - Jeziorna | sprzedaż | 2 890 000 PLN

Przedmiotem sprzedaży jest gotowy dom w stanie deweloperskim.


Dom położony jest na mini osiedlu nowoczesnych domów jednorodzinnych wolnostojących.
Budynki są dwukondygnacyjne z ocieplonym poddaszem z oknami. 
Budynki przykryte są dwuspadowym dachem. Projekt domów zakłada parkowanie 2 samochodów pod odkrytą betonową wiatą (ok 40 m2).

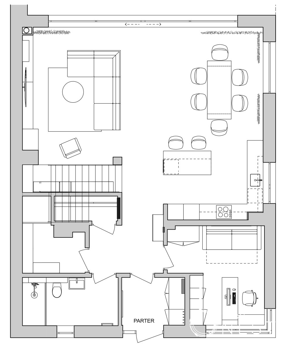
Opis parteru: salon z jadalnia z aneksem kuchennym ok 57 m2. Z salonu wyjście na taras ok 14 m2, dodatkowo na parterze gabinet ok 12 m2, łazienka, pomieszczenie gospodarcze, kotłownia, hol, wiatrołap i schody. Wysokość pomieszczeń 3 m.
Piętro: trzy sypialnie, dwie łazienki, garderoba i hol oraz dwa balkony z przeszklonymi balustradami.
Poddasze - 100 m2 przestrzeni do zagospodarowania.
W budynku zamontowane są duże okna aluminiowe panoramiczne. Budynki ogrzewane są pompą ciepła i rozprowadzone jest w całym domu ogrzewanie podłogowe.

Atuty nieruchomości:
• położenie w cichej części Konstancina - Jeziorny ( Bielawa ),
• Szkoła Amerykańska w odległości pieszej,
• wszystkie media miejskie.

Media miejskie: gaz, prąd, kanalizacja, wodociąg, światłowód.

Zakup nieruchomości w tej lokalizacji jest świetną alternatywa, dla osób ceniących sobie spokój z jednocześnie bardzo dobrym połączeniem do Warszawy, dojazd do centrum z Konstancina zajmuje ok. 25 min.

Zapraszam na prezentację,
Agnieszka Dzierzgowska
606611113

* Treść niniejszego ogłoszenia nie stanowi oferty handlowej w rozumieniu art. 66 Kodeksu Cywilnego
Nieprawidłowy adres E-mail